金辉弘阳联合打造!经开区“江山云璟”来了,7栋536套房!
扫描到手机,新闻随时看
扫一扫,用手机看文章
更加方便分享给朋友
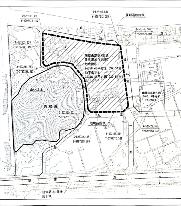
近日,徐州经开区官网发布《陶楼山东侧C地块规划公示》,根据规划,项目将建7栋住宅,共计536套房源。
另据消息表示,陶楼山东侧A、B、C地块将由弘阳和金辉联合开发,金辉操盘,案名已定为江山云璟。

陶楼山东侧BC地块规划均公示,将建12栋住宅楼今年,弘阳先后竞得陶楼山东侧B、C地块,其中陶楼山东侧B地块总价为5.045亿元,成交楼面价8719.03元/㎡;陶楼山东侧C地块总价为5.187亿元,成交楼面价8816.31元/㎡。目前,两地块规划均已出炉。2020-61号陶楼山东侧C地块规划建7栋17-18层住宅楼,户数536户,绿地率35.10%,机动车位数656辆,非机动车位数1619辆。


2020-60号陶楼山东侧B地块规划建5栋15-18层住宅楼,户数522户,绿地率35.10%,机动车位数642辆,非机动车位数1584辆,另外该地块需建设一所不小于12班幼儿园。


区域还剩下2020-59号陶楼山东侧A地块规划未公示,2021年1月13日,金辉以5.313亿元竞得2020-59号陶楼山东侧A地块,成交楼面价8764元/㎡。

双地铁加持,未来配套亮点多
陶楼山地块由金辉弘阳强强联合开发,地块靠近规划中的地铁3号线二期和地铁4号线1期的交汇处——驮蓝山站,双地铁加持,未来交通便捷。
教育方面附近有徐州市王庄小学、开发区中学附属小学、徐州市开发区中学长安路校区、徐州市幼儿高等师范专科学校、徐州市开发区中学等多所学校。

不过,目前地块周边工厂比较多,有徐工、卡特彼勒等,周边的商业配套等设施也有待进一步完善。
目前项目所处的区域无在售新盘,该项目的到来将会改善周边居民的居住需求。
声明:本文由入驻焦点开放平台的作者撰写,除焦点官方账号外,观点仅代表作者本人,不代表焦点立场。


