快速路、地铁、综合体…都要来了!徐州这个板块势不可挡...
扫描到手机,新闻随时看
扫一扫,用手机看文章
更加方便分享给朋友
徐州十四五规划提出,到2025年徐州GDP将达到1万亿,一只脚已跨入“万亿俱乐部”城市行列……徐州城市能级迅速提升的背后,是城市骨架的迅速拉伸,几个主城区的延伸板块相继崛起。这其中,板块配套较丰满,已经迎来全新气象的新城,徐州网红板块大学路可以算其中一个!近日,大学路板块再迎4大利好,包括快速路、地铁、学校、商业体等,都要来了!

NO.1|壹
交通、学校、产业再传利好这里迎来价值爆发
近日,徐州市政府新闻发布会发布《徐州市“十四五”综合交通运输体系发展规划的通知》,提及了大学路快速化改造、地铁4号线前期工程展开。并且已经提上日程:大学路快速化改造泉山区段启动招标、4号线一期启动工程施工图审查公开招标!

01.大学路快速化改造泉山区段招标
8月30日,徐州交通运输局发布了关于《徐州市大学路快速化改造工程(泉山区段)施工监理项目评标结果公示》。

其中,引人注意的有两点:1、项目北起范围为金福路,而不是此前招标中的起始点三环南路,其中金山南路占据约435m,简单说,大学路快速化改造工程要向东北“延伸”435m了,进行主干道改造!2、工程主要为南三环-大学路互通立交节点工程,在既有三环南路跨线桥基础上增设5条匝道工程衔接大学路与三环南路快速路。

024号线一期启动工程施工图审查公开招标昨天(8月31日),徐州地铁4号线一期工程施工图审查评标结果公示!(来源:徐州地铁官网)这代表着4号线距离正式开工不远了,让人期待。

根据规划,地铁4号线一共设置了19个站点,其中包含的换乘站数量达到8个,与1、2、3、5、6号线交汇,并且穿过了铜山区、泉山区、云龙区、鼓楼区四个行政区,被称为“换乘之王”完全是实至名归。预计今年年底开工,2026年建成通车。03选址曝光!珠江路小学将建12轨72班!大学路即将新建2所学校!8月19日,徐州市公共资源建设工程交易平台发布了《珠江路学校建设项目设计》招标公告,这意味着此前一直在规划中的珠江路学校正式拉开建设序幕!据悉,该校占地92亩,是一所办学规模为九年一贯制 8 轨 72 班中小学。

另外,南山中学也将落户大学路!学校位于徐连高速北,大学路南端,总投资高达6个亿,占地179亩!30轨90班!04提速!徐州高新云谷创新中心主体初现徐州高新云谷创新中心建设进度很快!目前主体初现,建了七层左右!由美的置业集团负责承建,总体规划400亩,总投资约20亿元。

根据规划,徐州全力打造“一城一谷一院一区”四大创新发展平台,其中“一谷”即徐州科技创新谷,是徐州市主导产业和战略性新兴产业研究院集聚区、科技创新集聚区。而徐州高新云谷创新中心是徐州科技创新谷核心区!它的建设,将加持大学路甚至高新区整体的科技创新实力,徐州“硅谷”未来可期!

NO.2|贰
美的天誉择址大学路周边生活太方便了
在这样的大背景下,徐州科技创新谷迎来新一轮大发展。而美的天誉,就是科技创新谷的重要组成之一。项目不仅可以享受以上所有配套,目前板块内交通、医疗、商业、教育和自然资源均走向成熟。

买房买地段。美的天誉位于大学路、珠江路交叉路口,同时也是4号线一期(即将开工)桥上站的位置,可以说项目是标准的“地铁盘”!

在这里,看病就医也是很方便的。美的天誉北侧就是吴孟超医院(建设中)和徐州市排名前列人民医院,市立一院是淮海经济区规模较大的医院,并成为“中国矿业大学附属医院”。

大学路上商业配套很成熟!不仅有美的天誉自持的约40万方商业综合体,再往北去,还有已营业的大丰壹方城、怡和广场。另外,项目东南侧还靠近建面约7.1万㎡的铜山区文化中心,内部包括文化馆、图书馆、博物馆、剧院、电影院及部分商业配套设施,总投资5.99亿,预计很快完工。

周边教育资源完善,中小学有矿大附中和南师大附属大学路实验学校,以及江苏师大附属小学,高校有中国矿业大学和徐海学院(规划选址),人文气息浓厚。

自然资源有佛手山公园、龙腰山、凤凰山和泉山森林公园等。

NO.3|叁内外皆修5期改善属性很强!除了地段,美的天誉自身过硬的产品无疑是该项目俘获客户“芳心”的一大卖点!美的天誉基于世界主流的TOD+RBD开发模式,打造社区6街坊+1座公园规划,56万方住宅、40万方商业、办公、幼儿园等公共配套多重业态组成。

美的天誉目前在售5期地块,也是整个项目中少有一批小高层。难得的是,5期是整个项目中绿化率较高的,非常宜居,亮点颇多。01规划约700m樱花大道+约14000㎡樱悦家公园,外侧还有楚河这里还是个全龄化活力社区,整个项目规划约700m樱花大道、约14000㎡樱悦家公园和约1万㎡“樱花堂”幼儿园。与此同时,这里也是邻里的互动空间,多个家庭互相交流,可以促进邻里感情、营造美好社区氛围。

5期旁还有楚河淙淙流过,河面也是环绕项目中面积段较大的,景色很美!未来,不管是清晨迎着微风在夜樱跑道锻练,还是傍晚坐在小区内陪同家人看夕阳,负离子的空气都沁人心脾。

02.建面约129㎡和169㎡户型均是大面宽,改善属性很强!在大学路板块在不断发展的背景下,涌入了一批高精尖人才,他们对居住的层次要求更高!这时,美的置业深知,当下的大学路不止是刚需时代了,急需打造一个改善产品,才能解渴板块内潜在且巨大的人居需求!所以,它来了!5期的改善属性确实很强,是一梯一户、无连廊设计、装修交付,配置智能门锁、语音管家、一键报警等全屋智慧家居系统,非常高端。

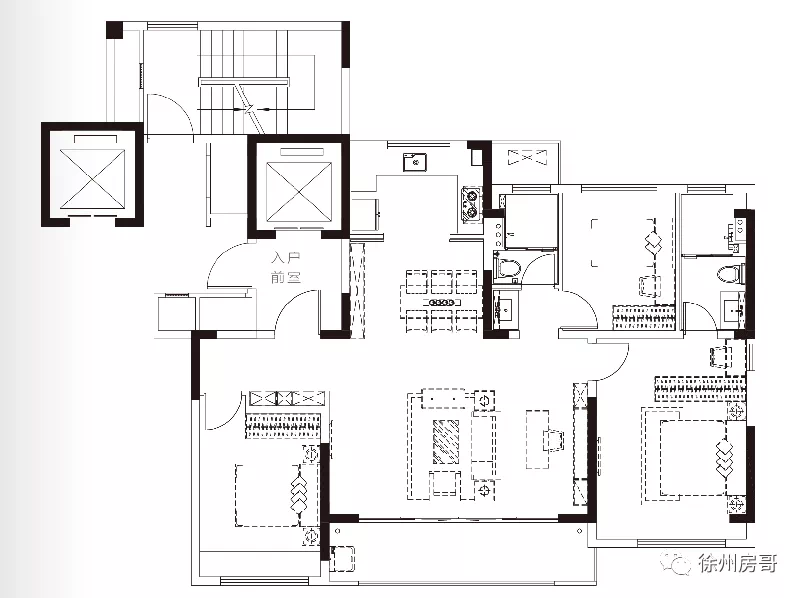
建面约129㎡和169㎡的户型,均打造大宽厅,空间利用率很高。比如【建面约129㎡三室2厅2卫户型】,客餐厅一体,开间达到了6.4米,而且在沙发背后还有一个开放式书房,业主可根据自己家庭的需求改造成儿童房或其他。拥有超大的落地大阳台,另外,三个卧室自带大飘窗。

(具体房源的价格、折扣、付款方式等信息,因销售时间、户型楼栋、楼层、方位等不同有所差异,以《商品房买卖合同》及其补充协议、附件等书面文件约定为准。)
而【建面约169㎡四室两厅三卫的户型】,可满足三代同堂、三胎之家居住需求,让全龄陪伴一步到位,亮点很多!整体方正通透,进门就是屏风,这也是大户人家才有的标配。做到了主卧、次卧、餐厅、客厅四开间朝南的效果,而且餐客厅连接宽景阳台,形成明亮通透的采光体系。关键是这个家政间设计,在徐州少见,增大了收纳储物空间。为提升主人居住的尊荣感,主卧设计上给予了“豪华阵容”——自带大飘窗+独卫+衣帽间,空间更大更舒适。

(具体房源的价格、折扣、付款方式等信息,因销售时间、户型楼栋、楼层、方位等不同有所差异,以《商品房买卖合同》及其补充协议、附件等书面文件约定为准。)


免责声明:本广告为要约邀请,所涉及的图文资料仅供参考,双方的权利义务等具体以合同及补充协议约定为准,未尽事宜由本公司进行补充说明。凡文章内引用的相关配套及政府规划内容,不排除因政府相关规划、规定及本公司未能控制的原因而发生变化,我司因不可抗力对此不作承诺。图片来源于互联网,如有侵权请联系删除。本宣传资料所涉及的户型均为标准层户型,仅供示意参考,其装修、家居、陈设等非交付标准,不同户型的面积尺寸、功能布局、空间分割门窗/管井形态等均有不同;相同户型因楼栋、楼层、单元等差别,局部结构、面积等也可能不同,具体以政府部门最终审定的图纸和买卖双方签署的《商品房买卖合同》为准。
声明:本文由入驻焦点开放平台的作者撰写,除焦点官方账号外,观点仅代表作者本人,不代表焦点立场。


