东区利好!投资5570万元,这条区域大动脉即将打通!
扫描到手机,新闻随时看
扫一扫,用手机看文章
更加方便分享给朋友
宇宙东区多个项目传来新动态城市向东势不可挡!

路网的建设,是打通城市内循环促进发展的必经之路。
作为徐州向东发展的重要一站,大黄山片区今年已呈起飞之势,为促进片区崛起,大黄山路工程得以加快推进,近日,该项目发布招标公告,不久的将来即动工建设, 未来东区的路网必然更加四通八达!

工程概况:
建设地点:徐州经济技术开发区境内
线路走向及建设规模:工程西起高新路,东至经济技术开发区东侧边界,路线全长1.740km。主要采用城市主干路标准建设,双向4车道,道路红线宽34.5米,设计行车速度为50公里/小时,配套建设照明、排水、交通等附属设施。
合同估算价:约5570万元
工期要求:270日历天
招标范围:包含土石方、道路工程、桥梁工程、排水工程、路灯工程、交通工程等,具体内容详见工程量清单及施工图所含全部内容。
一旦启动招标,就意味着该项目距离开工建设不远了,所以恭喜大黄山片区的居民,交通配套再上新台阶,未来随着一些楼盘上市、商业落地,片区崛起指日可待。

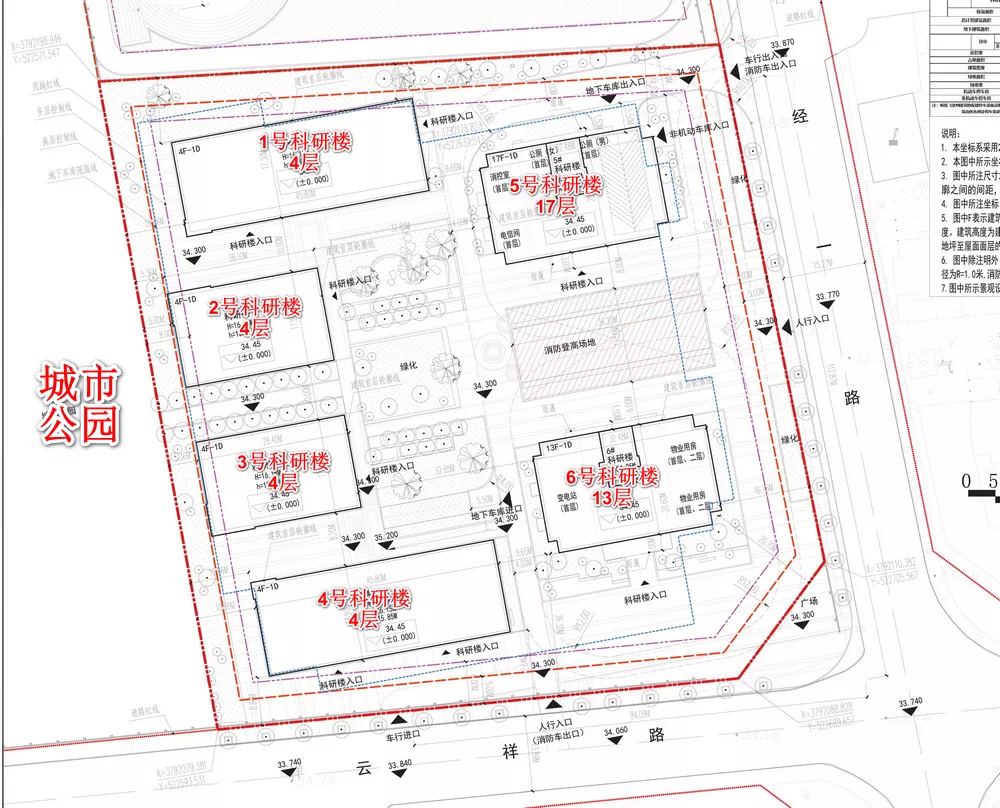
作为百悦城的办公地块,农科院E地块近日发布规划公示,与之前发布的规划图对比,略有调整。
从原来的规划图中可以看出,科研地块所处位置靠近庆丰路一侧,而城市公园靠近东面经一路一侧。

但从较新规划公示可以看出,该项目科研地块靠近经一路一侧,而城市公园移到了庆丰路一侧。


项目用地面积:13531.7平方米,总建筑面积39091.94平方米,计容建筑面积29730.07平方米,规划5栋科研楼,其中1、2、3号楼均为4层,5号楼为17层,6号楼为13层。城市公园的西移,将给万达商圈再添休闲散步新去处,丰富了周边的配套。
声明:本文由入驻焦点开放平台的作者撰写,除焦点官方账号外,观点仅代表作者本人,不代表焦点立场。


