徐州东区今年将新建一所小学!还有这些新学校也要来了……
扫描到手机,新闻随时看
扫一扫,用手机看文章
更加方便分享给朋友
近日,徐州市公共资源建设工程交易平台发布了云飞小学项目设计的定标公示。

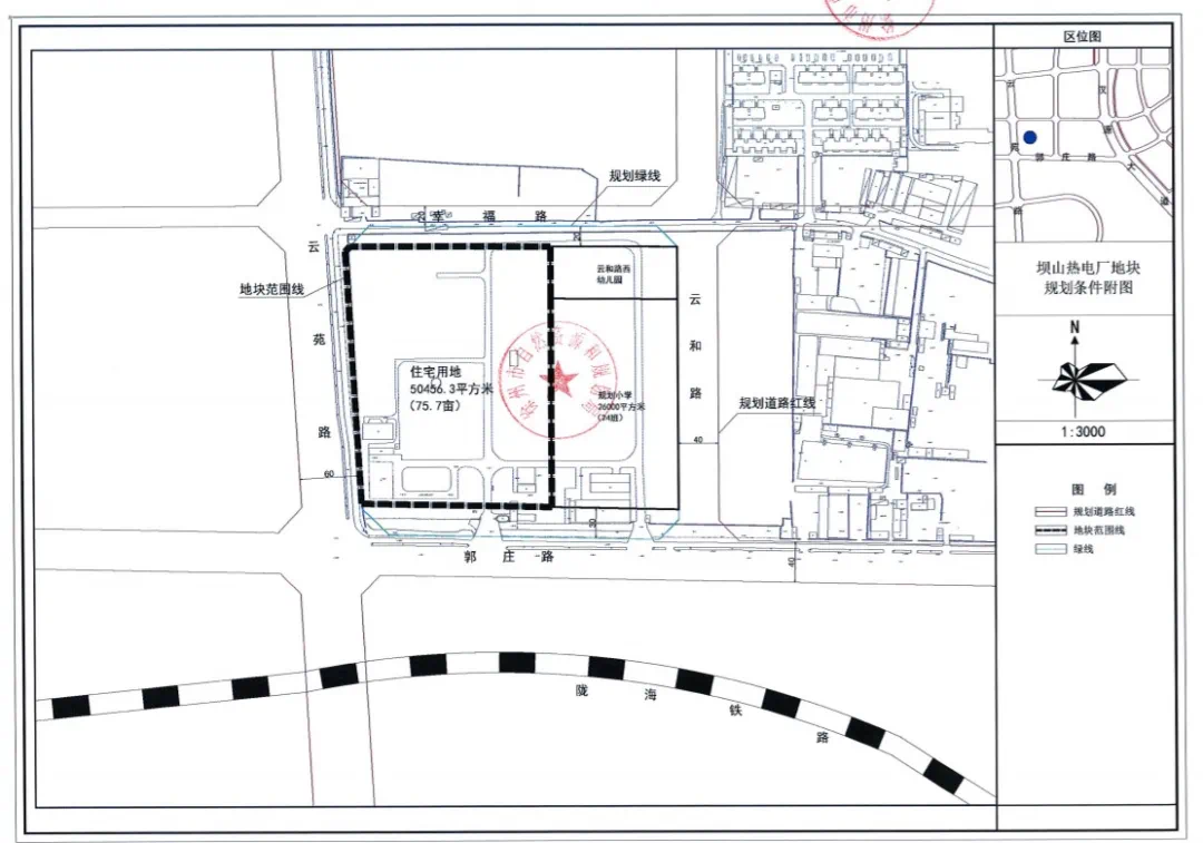
而在近日徐州市政府印发的《徐州市2021年度城建重点工程计划》中,提到了云飞小学项目,该项目位于郭庄路以北,坝山热电厂地块内,占地约39亩,建筑面积2.5万平方米,办学规模8轨48班,2021年形象进度为开工建设,建设年限2021年-2022年。

2020年7月14日,原坝山热电厂地块正式对外出让,此前,在地块出让须知中的地块规划条件一项中:就注明了地块东侧需建设一所幼儿园和一所小学。

原坝山热电厂的竞得方是碧桂园,目前项目案名已经公布:云樾外滩,项目正在进行预约当中,预计三月上旬公开售楼处,三月下旬首次开盘。而根据《徐州市2021年度城建重点工程计划》中的信息,云飞小学有很大的可能在云樾外滩项目的东侧。

目前,云飞小学尚处在设计的定标阶段,具体规划还需要一段时间,而云飞小学未来也将对郭庄路周边的小区提供便捷的教育资源,也会使得周边小学阶段的教育配套更加完善。
2021城建重点工程中还有哪些学校?
一中新城区校区二期
根据《徐州市2021年度城建重点工程计划》中的信息可以得知:徐州一中新城区校区二期位于新城区紫金路北、云台路南、一中新城区校区西,占地约120亩,规划建筑面积9.35万平方米,新建国际部、功能教室、学生公寓等。办学规模高中16班、国际部8轨24班,建设年限为2020年-2022年,2021年形象进度为主体施工。

2020年4月,徐州市自然资源和规划局发布了《徐州市排名前列中学新城区校区二期规划公示》,随后,徐州一中新城区校区二期的效果图也对外发布。

目前,徐州一中新城区校区已在2020年9月迎来了排名前列批学生,而徐州一中新城区校区二期将与一期工程实现无缝对接,建成后徐州一中紫金校园总占地近300亩。

三十六中迁建
根据《徐州市2021年度城建重点工程计划》中的信息可以得知:三十六中位于三环南路南、北京北路东(中石化管道储运公司南货场),占地约153亩,建筑面积10.9万平方米。建设12年一贯制学校,其中小学36班,初中24班,高中36班。建设年限为2019年-2021年,2021形象进度为完工。

此前,在2020年11月13日,徐州市三十六中新校区全面封顶,学校相关负责人介绍,新校区2020年底主体结构完工,2021年上半年装饰装修工程基本结束,计划2021年9月投入使用。

新城区高级中学
根据《徐州市2021年度城建重点工程计划》中的信息可以得知:新城区高级中学位于新元大道以东、潇湘路以北,占地约202亩,建筑面积约9.5万平方米,办学规模20轨60班,建设年限2021年-2023年,2021形象进度为开工建设。

根据《徐州市2021年度城建重点工程计划》中的信息记者推算了新城区高级中学的大致范围,附近有华顿国际学校,徐州星尚广场,住宅方面有中锐星尚城、恒基雍景新城、韩元国际华城、中锐星尚城等小区,学校建成之后将会再次提升新城区的教育资源。

体育场北路中学
《徐州市2021年度城建重点工程计划》中提到:彭祖大道以东、太行路以北,新建体育场北路中学,占地约105亩,建筑面积约3.6万平方米,办学规模20轨60班,建设年限2021年-2023年,2021形象进度为开工建设。

根据《徐州市2021年度城建重点工程计划》的信息记者推算了体育场北路中学大致的位置,学校靠近绿地商务城泊林公馆和中铁原香漫谷。周边还有绿地梵顿公馆等小区,可以为周边的小区居民提供便捷的教育资源。

三十七中新校区
根据《徐州市2021年度城建重点工程计划》中的信息可以得知:三十七中新校区(桃花源高级中学)位于徐商公路南、火花北路西,占地77.55亩,建筑面积约6.3万平方米(含地下),办学规模16轨48班,建设年限为2021年-2022年,2021形象进度为主体完成。

2020年2月18日,徐州市自然资源和规划局发布了徐州市三十七中新校区(桃花源高级中学)规划公示,2020年12月14日,徐州市公共资源建设工程交易平台发布了徐州市第三十七中学新校区(桃花源高级中学)的招标公告。根据以上信息可以得知:徐州市第三十七中学新校区(桃花源高级中学)位于徐州生物工程学院西侧。

从招标信息和规划公示汇总可以得知,三十七中新校区建设有教学、实验、电教网络、艺术、图书馆、展馆、报告厅、宿舍楼及餐厅、体育活动中心等。

徐州市第三十七中学建立于1965年5月,前身为华东煤炭基建公司中心学校初中班,以解决职工子女入学难题。先后更名为徐州矿务集团排名前列中学、徐州市第三十七中学。现校址位于煤建三街(煤建路西,西关大润发南侧),新校区的建设,将为徐州西区进一步提升教育资源储备。

殷庄高中
殷庄高中将位于八里路以北、殷庄路以西,占地约105亩,建筑面积约9.5万平方米,办学规模20轨60班,建设年限2021年-2023年,2021年形象进度为开工建设。

殷庄高中的建设年限为2021年-2023年,建成后,北区的教育资源也将会得到一定的提升。

新城区国际学校
新城区国际学校将位于新元大道以东,丽水路以南,占地约150亩,建筑面积约10万平方米,建设年限为2021年-2023年,2021形象进度为开工建设。

根据《徐州市2021年度城建重点工程计划》中提到的位置可以发现,新城区国际学校在徐州工程学院新城区校区的南侧,学校西侧是华顿国际学校,南侧是同为2021城建重点工程的新城区高级中学。

2021城建重点工程计划中并未提及新城区国际学校的办学规模,学校的办学理念目前也并未对外释放,但是能够明确的是,未来这一区域将形成一个集小学、初中、高中、大学教育于一体的区域。
镜泊路九年一贯制学校
镜泊路九年一贯制学校位于镜泊东路南、新元大道东,占地133亩,建筑面积约4.4万平方米,办学规模小学48班、初中30班,建设年限为2020年-2022年,2021形象进度为部分完成。

据了解,镜泊路九年一贯制学校的规划公示在2019年8月13日就对外公示,学校未来建成后,会使得新城区的教育资源得到进一步提升。

此外,《徐州市2021年度城建重点工程计划》中,还有泉山区锦绣中学、西月河中学、九里湖实验学校、九里排名前列小学、尚仕名邸小学等新建学校,改扩建方面,则有鼓楼小学改扩建、九里山实验学校改扩建等。

新学校的建立,将使得附近片区的教育资源更加完善,同时也将会给周边的居民提供便捷的教育资源。而改扩建的学校也将会使得教学水平等方面得到提升,记者了解到,大部分学校的新建、改扩建工程在2021年-2023年完成,这也意味着,不久之后,徐州市民也将享受到这些便利的教育资源,未来徐州的教育资源也将会更加丰富。
部分来源:无线徐州、徐州发布
声明:本文由入驻焦点开放平台的作者撰写,除焦点官方账号外,观点仅代表作者本人,不代表焦点立场。


